Vous souhaitez effectuer une simulation de votre taxe d'urbanisme ?
Rendez-vous sur ce lien :https://www.impots.gouv.fr/actualite/mise-en-ligne-du-simulateur-des-taxes-durbanisme

Liste de pièces jointes


Guichet numérique des autorisations d'urbanisme
Depuis le 1er janvier 2022, dans le cadre de la loi ELAN, la Communauté de Communes du Haut Val d’Oise met en place le Guichet Numérique des Autorisations d’Urbanisme (GNAU) permettant aux usagers (particuliers et professionnels) de déposer sur une plateforme dédiée et sécurisée, leurs demandes d’autorisations d’urbanisme et d’en suivre l’évolution de l’instruction.
Pour consulter le portail de dépôt numérique de la Communauté de Communes du Haut Val d’Oise et faire vos demandes en ligne : cliquez-ici https://gnau12.operis.fr/hautvaldoise/gnau/#/
Par ailleurs, il reste toujours possible de déposer, si vous le souhaitez, les demandes en version papier dans votre mairie.
GUIDE PRATIQUE pour vous aider à établir votre dossier d’urbanisme.

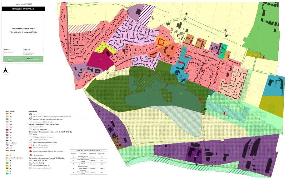
PLU - révision approuvée le 30 mars 2023
Vous pouvez consulter notre PLU ci-dessous

FORMULAIRES DE DEMANDES D'URBANISME
Liste de pièces jointes
file_downloadcerfa_13405-13-1 permis de démolir.pdf (PDF - 1.22 MB)
file_downloadcerfa_13406-15 Demande de permis de contrsuire.pdf (PDF - 1.6 MB)
file_downloadcerfa_13408-12 Attestation achèvement de travaux.pdf (PDF - 975.88 kB)
file_downloadcerfa_13410-12 Certificat d_urbanisme.pdf (PDF - 1 MB)
file_downloadcerfa_13702-12 _1_ DP division.pdf (PDF - 1.41 MB)
file_downloadcerfa_16700-01 régulation modif transfert.pdf (PDF - 1.49 MB)
file_downloadcerfa_16701-01 transfert.pdf (PDF - 533.23 kB)
file_downloadcerfa_16702-01 Déclaration Préalable.pdf (PDF - 1.75 MB)
Documents joints
file_downloadDélibération approuvant la révision du PLU.pdf (PDF - 3.06 MB)
file_downloadOrientation d_aménagement et de Programmation.pdf (PDF - 3.27 MB)
file_downloadPlan de zonage 1 sur 2000ième.pdf (PDF - 14.42 MB)
file_downloadPlan de Zonage 1 sur 4000 ième.pdf (PDF - 6.57 MB)
file_downloadRèglement.pdf (PDF - 3.64 MB)
file_downloadP10 - Zonage PPRI BERNES - _A0 - couleurs_.pdf (PDF - 5.53 MB)